Ufficio in vendita

Torino, Corso Filippo Turati - San Secondo
€ 175.000
4 locali 4 locali
120 Mq 120 Mq
1 bagno 1 bagno

Ufficio in vendita

Torino, Corso Filippo Turati - San Secondo

Descrizione annuncio

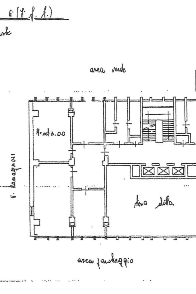
CORSO TURATI: l'ufficio è posto nel condominio denominato “Garden Palace” edificato tra la fine degli anni Sessanta e gli inizi degli anni Settanta.

Si propone come un innovativo complesso immobiliare residenziale/terziario, dotato di piscina sul tetto, impianti centralizzati di riscaldamento sottopavimento e di raffrescamento, giardini interni ed aree verdi perimetrali, portici e camminamenti coperti al piano terreno, servizio di portineria, doppi ascensori e piscina condominiale.

L’immobile, che copre una superficie di circa 110 mq, è posto al 6° piano ed è disponibile da subito.

Internamente si compone di ampio ingresso su cui si dispongono i quattro vani caratterizzati da dimensioni diverse.

Due affacciano in corrispondenza dell'interno cortile, con vista sulla collina Torinese e due espongono verso l'esterno.

Risultano essere tutti particolarmente luminosi grazie alla presenza di grandi finestre.

Il servizio igienico è esterno sito nel corridoio del piano. Si compone di un antibagno con due lavandini e il bagno con tazza wc e bidet. Entrambi gli ambienti sono finestrati.

Le spese di condominio sono di circa 4.200,00 euro all'anno importo che comprende: spese ordinarie, servizio di portineria, raffrescamento, uso della piscina.

Le spese di riscamento sono di circa 1.000,00 euro all'anno

La posizione risulta essere particolarmente strategica e ben servita dai mezzi pubblici che consentono di raggiungere tutte le destinazioni della città in breve tempo.

La Stazione di Porta Nuova dista circa cinque minuti a piedi.

Per eventuali informazioni o per fissare un appuntamento di visita dell'immobile, contattarci in ufficio allo 011655063 oppure al numero Whatsapp 347 771 13 85.

Mostra tutto

Nelle vicinanze

Trasporto pubblico Trasporto pubblico
Nizza
Nizza
420 m
Marconi
Marconi
560 m
stazione di Torino Porta Nuova
stazione di Torino Porta Nuova
900 m
stazione di Torino Porta Susa
stazione di Torino Porta Susa
2,0 Km
Turati
Turati
130 m
Ricariche auto elettriche Ricariche auto elettriche
evway TO Turati
170 m
Bluetorino Politecnico
1,1 Km
Bluetorino Valentino
1,1 Km
evway TO Vittorio Emanuele II
1,2 Km
evway TO Piazza Cln
1,6 Km
Scuole Scuole
Liceo Statale Regina Margherita
480 m
Istituto di Istruzione Superiore C.I. Giulio
530 m
Scuola Primaria "Felice Rignon"
580 m
Istituto Rosmini
580 m
Scuola Secondaria di I grado "Alessandro Manzoni"
850 m
Farmacia Farmacia
Farmacia
260 m
Farmacia Ospedale Mauriziano
300 m
Nizza
370 m
Picco Tavano
380 m
Del Leone
510 m
Ospedali Ospedali
Ospitale Mauriziano Umberto I di Torino
500 m
Ospedale Mauriziano
510 m
Ospedale Evangelico Valdese
1,1 Km
Clinica Fornaca di Sessant
1,3 Km
Ospedale San Vito
1,6 Km
Supermercati Supermercati
Carrefour Market
300 m
Simpatia CRAI
400 m
Carrefour Express
470 m
Borello
580 m
Simply Market
590 m
Negozi Negozi
Bio Bottega
120 m
Tezenis
280 m
Sandra boutique
480 m
Baobab
530 m
Poggioli
550 m
Bar Bar
Ennio Bar
420 m
Gelateria Visconti - Testa
450 m
Art & Coffee
490 m
Italy Inn
500 m
Il Banchetto
560 m
Ristoranti Ristoranti
Ristorante Appennino Pistoiese
370 m
Antojitos Peruanos
410 m
Taj Mahal
460 m
Vini liquori gabri
470 m
Pizzeria Giampy
490 m
Mostra tutto

Caratteristiche

Rif.:
61187799
Piano:
6 di 9 con ascensore (Piano alto)
Condizionamento:
Autonomo
Ascensore:
Riscaldamento:
Centralizzato
Giardino:
Condominiale
Mostra tutto
Prezzo Prezzo
€ 175.000
Rata mutuo Rata mutuo
€ 829 / mese
Spese annue Spese annue
€ 4.200
Proponi il tuo prezzoProponi il tuo prezzo

Classe Energetica

D
D
D
D
D
D
D
D
D
EP globale non rinnovabile:
145.46 kW h/m² anno
EP globale rinnovabile:
7.60 kW h/m² anno
EP invernale del fabbricato:
EP estiva del fabbricato:
Anno di costruzione:
1968
Riscaldamento:
Centralizzato
Tipo impianto:
Ad aria
Tipo alimentazione:
Altro

Ti interessa visionare l'immobile?

Fissa un appuntamento  Fissa un appuntamento

Richiedi informazioni

Clicca su Leggi per aprire l'informativa
* Questi campi sono obbligatori

Calcola il tuo mutuo

Semplice e senza impegno
Anticipo

( % )
Mutuo

( % )

pochi semplici passi

inserisci i tuoi dati
Questionario completato
Grazie per aver richiesto un appuntamento senza impegno con un nostro Consulente del Credito e Assicurativo.

Hai inserito correttamente tutti i dati necessari e a breve riceverai una e-mail con un link da convalidare per inviare i tuoi dati.
Affiliato
Studio Aeronautica Per L'Azienda Sas
Via Madama Cristina, 75/A 10126 Torino (TO)

Il nostro staff


  • Concetta Chierchia
    Affiliata

  • Loredana Tripodi
    Coordinatrice
Via Madama Cristina, 75/A 10126 Torino (TO)
Zona: San Salvario-Precollina-Crocetta-Lingotto-Mirafiori
Mostra su mappa
Orari: dal lunedì al venerdì dalle 09.00 alle 12.30 e dalle 14.30 alle 19.30 - sabato chiusura 12.30
Affiliato
Studio Aeronautica Per L'Azienda Sas
Via Madama Cristina, 75/A 10126 Torino (TO)

2026 Tecnocasa Franchising S.p.A. - P. IVA 08365160152 - Via Monte Bianco 60/A 20089 Rozzano (MI). Ogni agenzia ha un proprio titolare ed è autonoma. Privacy policy | Policy utilizzo | Cookie policy