Ufficio in vendita

Torino, Corso Unione Sovietica - Mirafiori Sud
€ 210.000
Prezzo aggiornato
5 locali 5 locali
250 Mq 250 Mq
3 bagni 3 bagni

Ufficio in vendita

Torino, Corso Unione Sovietica - Mirafiori Sud

Descrizione annuncio

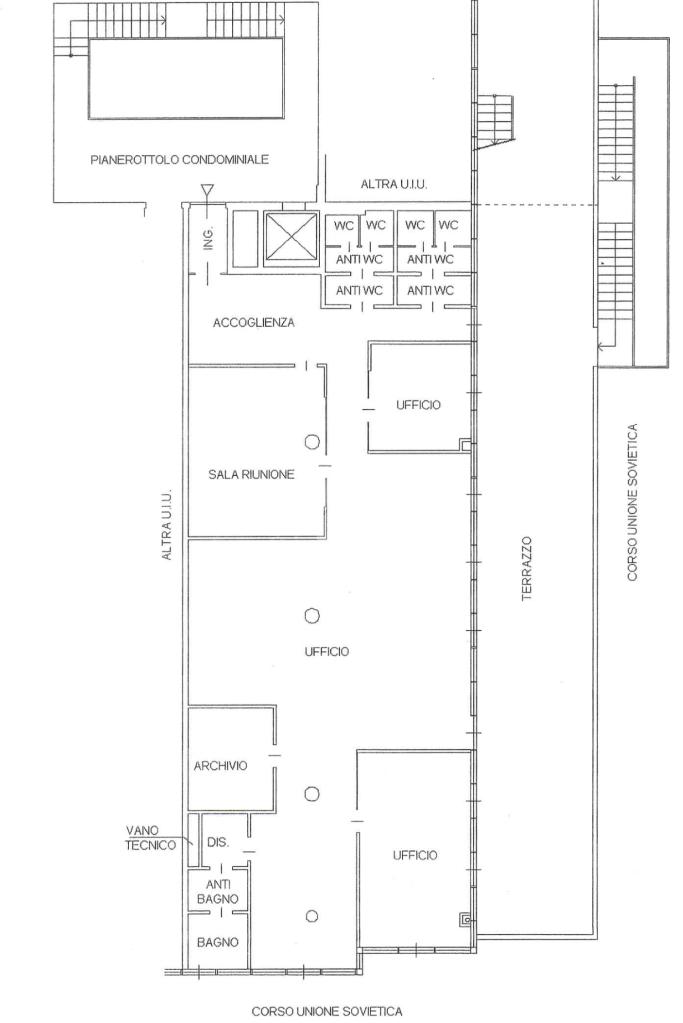
CORSO UNIONE SOVIETICA: nelle immediate vicinanze di Strada Del Drosso, in pieno quartiere Mirafiori, si dispone di una soluzione in vendita ad uso ufficio.

L'immobile, sito in un curato edificio degli anni Novanta, è posto al 3° piano e si sviluppa su una superficie di circa 250 mq interni, oltre a circa 50 mq esterni di terrazzo.

La pianta di forma rettangolare si compone di un ingresso reception che disimpegna tutti gli ambienti che risultano essere di diversa metratura.

Lo spazio centrale è il più ampio e su questo si affacciano sia la sala riunione sia due uffici.

E' inoltre presente un vano archivio.

I servizi igienici sono tre, tutti dotati di antibagno.

Il terrazzo dal quale si può godere una splendida vista sull'Arco Alpino, dona notevole luminosità.

Completano la proprietà due posti auto al piano interrato dell'edificio.

Il riscaldamento è centralizzato ed è presente l'impianto di raffrescamento.

Le spese annuee sono di circa 11.000,00 euro e comprendono le spese ordinarie, le spese di riscaldamento e di raffrescamento.

L'immobile, soggetto ad IVA, rappresenta una valida opportunità per aziende che necessitano di una soluzione per la propria attività, per studi tecnici o professionali.

Per appuntamenti contattare il numero fisso dell'ufficio 011655063 o il numero Whatsapp 347 771 13 85.

Mostra tutto

Nelle vicinanze

Trasporto pubblico Trasporto pubblico
Nichelino
Nichelino
2,9 Km
Castello di Mirafiori
Castello di Mirafiori
340 m
Drosso Capolinea
Drosso Capolinea
370 m
Unione Sovietica Sud
Unione Sovietica Sud
210 m
Planteri
Planteri
220 m
Ricariche auto elettriche Ricariche auto elettriche
I Viali Shopping Park Nichelino | EnelX
780 m
Movi Mobility Village | EnelX
1,2 Km
Nichelino Amendola | EnelX
2,3 Km
Nichelino Moncenisio | EnelX
2,3 Km
Lidl Torino Traiano
2,6 Km
Scuole Scuole
Università di Torino - Scienze MFN e Farmacia
610 m
Università di Torino - Incubatore d'impresa
620 m
Istituto Comprensivo Statale "Castello Mirafiori"
720 m
CFP
720 m
Scuola Secondaria "Cristoforo Colombo"
920 m
Farmacia Farmacia
San Domenico
490 m
Farmacia
670 m
Farmacia Comunale
960 m
Farmacia Pramollo
1,0 Km
Ottone
1,1 Km
Ospedali Ospedali
Presidio sanitario “Vittorio Valletta”
890 m
Supermercati Supermercati
Carrefour
640 m
Aldi
770 m
Crai
970 m
DPiù
990 m
PrestoFresco
1,0 Km
Negozi Negozi
Negozi
370 m
OVS
810 m
Conbipel
900 m
Il Club delle Donne
990 m
Il Fornaio Pasticcere
1,0 Km
Bar Bar
Bar
1,2 Km
Coffee & More
1,7 Km
Al Diciannove B
1,8 Km
Incontri
1,9 Km
SARA S.a.S.
1,9 Km
Ristoranti Ristoranti
Self service 612
40 m
Piada Cafè
120 m
Ristorante Bar Alcalyzè
120 m
Bar Self Service
150 m
Il ristoro del Drosso
200 m
Mostra tutto

Caratteristiche

Rif.:
61174636
Piano:
3 di 8 con ascensore (Piano alto)
Posti auto:
2
Balconi:
1
Condizionamento:
Centralizzato
Ascensore:
Mostra tutto
Prezzo Prezzo
€ 210.000
Rata mutuo Rata mutuo
€ 981 / mese
Spese annue Spese annue
€ 11.000
Proponi il tuo prezzoProponi il tuo prezzo

Classe Energetica

F
F
F
F
F
F
F
F
F
EP globale non rinnovabile:
403.58 kW h/m² anno
EP globale rinnovabile:
12.84 kW h/m² anno
EP invernale del fabbricato:
EP estiva del fabbricato:
Anno di costruzione:
1994
Riscaldamento:
Centralizzato
Tipo impianto:
Ad aria
Tipo alimentazione:
Aria

Prezzo ridotto di €1 (13%%)

Ti interessa visionare l'immobile?

Fissa un appuntamento  Fissa un appuntamento

Richiedi informazioni

Clicca su Leggi per aprire l'informativa
* Questi campi sono obbligatori

Calcola il tuo mutuo

Semplice e senza impegno
Anticipo

( % )
Mutuo

( % )

pochi semplici passi

inserisci i tuoi dati
Questionario completato
Grazie per aver richiesto un appuntamento senza impegno con un nostro Consulente del Credito e Assicurativo.

Hai inserito correttamente tutti i dati necessari e a breve riceverai una e-mail con un link da convalidare per inviare i tuoi dati.
Affiliato
Studio Aeronautica Per L'Azienda Sas
Via Madama Cristina, 75/A 10126 Torino (TO)

Il nostro staff


  • Concetta Chierchia
    Affiliata

  • Loredana Tripodi
    Coordinatrice
Via Madama Cristina, 75/A 10126 Torino (TO)
Zona: San Salvario-Precollina-Crocetta-Lingotto-Mirafiori
Mostra su mappa
Orari: dal lunedì al venerdì dalle 09.00 alle 12.30 e dalle 14.30 alle 19.30 - sabato chiusura 12.30
Affiliato
Studio Aeronautica Per L'Azienda Sas
Via Madama Cristina, 75/A 10126 Torino (TO)

2026 Tecnocasa Franchising S.p.A. - P. IVA 08365160152 - Via Monte Bianco 60/A 20089 Rozzano (MI). Ogni agenzia ha un proprio titolare ed è autonoma. Privacy policy | Policy utilizzo | Cookie policy