Negozio in vendita

Torino, Via Duino - Bengasi
€ 90.000
4 locali 4 locali
100 Mq 100 Mq
1 bagno 1 bagno

Negozio in vendita

Torino, Via Duino - Bengasi

Descrizione annuncio

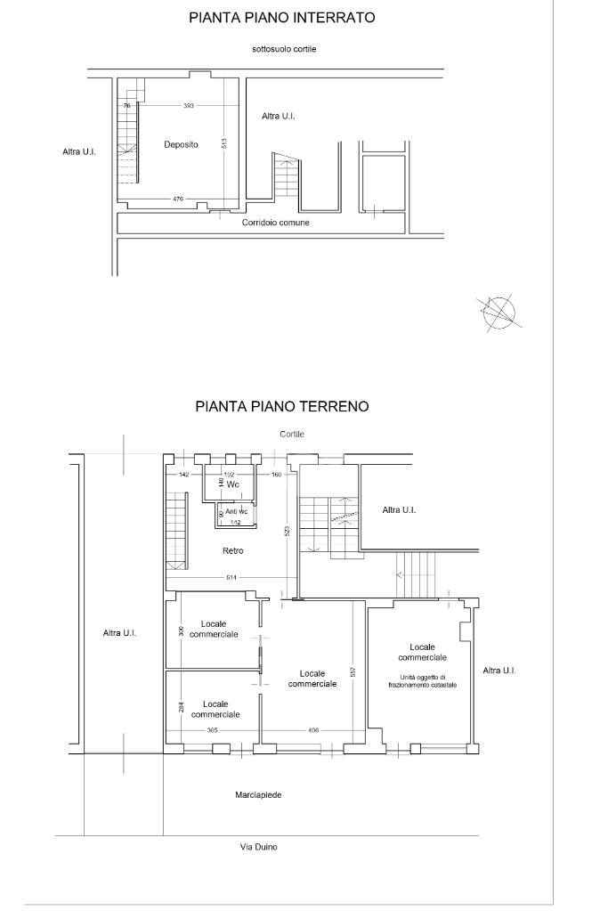
VIA DUINO: in pieno quartiere Mirafiori, in un curato contesto condominiale, edificato nel 1952, nelle immediate vicinanze di Corso Piero Maroncelli, si dispone di una soluzione commerciale in vendita, accatastata C/1.

L’immobile, disposto su due livelli collegati da comoda scala, è caratterizzato da due vetrine che conferiscono notevole visibilità.

Il negozio copre una superficie complessiva di circa 100 mq, di cui 70 mq al piano strada e circa 30 mq al piano sottostante.

Gli interni si presentano accuratamente ristrutturati con ricercata scelta dei materiali dai colori chiari questo e l’altezza degli ambienti, di circa 4 mt, conferiscono una notevole luminosità.

Il retro presenta due uscite che consentono di accedere all’adiacente cortile.

Il vano posto al piano interrato, adibito ad uso archivio, è dotato di split e di radiatore.

Infine il servizio igienico, munito di antibagno, è finestrato.

L’immobile è inoltre dotato di impianto di aria condizionata e di sistema di videosorveglianza.

Le spese di condominio, da ultimo consuntivo, sono di circa 350,00 euro all’anno, salvo conguaglio.

Il riscaldamento è centralizzato.

Grazie alle caratteristiche e alla posizione, via interna ma prossima alle principali arterie della zona, l'immobile si presta ad essere adibito a molteplici destinazioni d'uso, sia ufficio o studio professionale, sia vendita al dettaglio.

Per eventuali informazioni o per fissare un appuntamento di visita dell'immobile, contattarci in ufficio allo 011655063 oppure al numero Whatsapp 347 771 13 85.

Mostra tutto

Nelle vicinanze

Trasporto pubblico Trasporto pubblico
Bengasi
Bengasi
440 m
Italia61
Italia61
930 m
stazione di Torino Lingotto
stazione di Torino Lingotto
890 m
Moncalieri Sangone
Moncalieri Sangone
2,2 Km
Parcheggio Caio Mario
Parcheggio Caio Mario
1,6 Km
Ricariche auto elettriche Ricariche auto elettriche
Unieuro Torino Via Canelli | EnelX
320 m
Lidl Torino Traiano
510 m
Eneldrive Esselunga di Moncalieri
1,0 Km
Lingotto - 8 Gallery - Parcheggio B1
1,5 Km
Bluetorino Via Giordano Bruno
1,6 Km
Scuole Scuole
Scuola Primaria Re Umberto I
470 m
Scuola Secondaria di 1° grado ex Jovine ex succursale Vico
520 m
Istituto Professionale di Stato "Dalmazio Birago"-succursale
660 m
Istituto Comprensivo Statale "Adelaide Cairoli"-Scuola Primaria
710 m
ITIS Pininfarina
710 m
Farmacia Farmacia
Farmacia Monari
220 m
Vigliani
410 m
Sennacheribbo
460 m
Farmacia
480 m
Ghezzo
620 m
Ospedali Ospedali
Presidio sanitario “Vittorio Valletta”
2,0 Km
Ospedale CTO - Emergency
2,2 Km
Ospedale CTO
2,2 Km
Ospedale Infantile Regina Margherita
2,3 Km
Ospedale Ginecologico-Ostetrico Sant'Anna
2,3 Km
Supermercati Supermercati
Esselunga
490 m
Crai
530 m
Lidl
540 m
Penny Market
730 m
IN's Mercato
810 m
Negozi Negozi
Lievito madre
140 m
Vulpio Andrea
340 m
Paillettes - pronto moda
590 m
Panificio Persico
630 m
Negozi
740 m
Bar Bar
Bar Jerry
330 m
La Nuvola
590 m
da Gigi
630 m
Cremeria Avenue
770 m
Bar
780 m
Ristoranti Ristoranti
Panteon
60 m
azz che... pizz...
200 m
Chun Cheng
200 m
#Pizzatime
270 m
CH4 Sporting Club
420 m
Mostra tutto

Caratteristiche

Rif.:
61156980
Piano:
Su più livelli di 5
Totale piani:
5
Condizionamento:
Autonomo
Ascensore:
No
Riscaldamento:
Centralizzato
Mostra tutto
Prezzo Prezzo
€ 90.000
Rata mutuo Rata mutuo
€ 427 / mese
Spese annue Spese annue
€ 350
Proponi il tuo prezzoProponi il tuo prezzo

Classe Energetica

E
E
E
E
E
E
E
E
E
EP globale non rinnovabile:
76.58 kW h/m² anno
EP globale rinnovabile:
0.74 kW h/m² anno
EP invernale del fabbricato:
EP estiva del fabbricato:
Anno di costruzione:
1952
Riscaldamento:
Centralizzato
Tipo impianto:
A radiatori
Tipo alimentazione:
Altro

Ti interessa visionare l'immobile?

Fissa un appuntamento  Fissa un appuntamento

Richiedi informazioni

Clicca su Leggi per aprire l'informativa
* Questi campi sono obbligatori

Calcola il tuo mutuo

Semplice e senza impegno
Anticipo

( % )
Mutuo

( % )

pochi semplici passi

inserisci i tuoi dati
Questionario completato
Grazie per aver richiesto un appuntamento senza impegno con un nostro Consulente del Credito e Assicurativo.

Hai inserito correttamente tutti i dati necessari e a breve riceverai una e-mail con un link da convalidare per inviare i tuoi dati.
Affiliato
Studio Aeronautica Per L'Azienda Sas
Via Madama Cristina, 75/A 10126 Torino (TO)

Il nostro staff


  • Concetta Chierchia
    Affiliata

  • Loredana Tripodi
    Coordinatrice
Via Madama Cristina, 75/A 10126 Torino (TO)
Zona: San Salvario-Precollina-Crocetta-Lingotto-Mirafiori
Mostra su mappa
Orari: dal lunedì al venerdì dalle 09.00 alle 12.30 e dalle 14.30 alle 19.30 - sabato chiusura 12.30
Affiliato
Studio Aeronautica Per L'Azienda Sas
Via Madama Cristina, 75/A 10126 Torino (TO)

2026 Tecnocasa Franchising S.p.A. - P. IVA 08365160152 - Via Monte Bianco 60/A 20089 Rozzano (MI). Ogni agenzia ha un proprio titolare ed è autonoma. Privacy policy | Policy utilizzo | Cookie policy