Negozio in affitto

Torino, Via nizza - San Salvario
€ 2.000 / mese
2 locali 2 locali
90 Mq 90 Mq
1 bagno 1 bagno

Negozio in affitto

Torino, Via nizza - San Salvario

Descrizione annuncio

VIA NIZZA: sotto gli storici portici, che collegano il Quartiere di San Salvario al Centro di Torino, di fronte alla Stazione di Porta Nuova, si dispone di un immobile commerciale, accatastato C/1 in locazione, libero da subito.

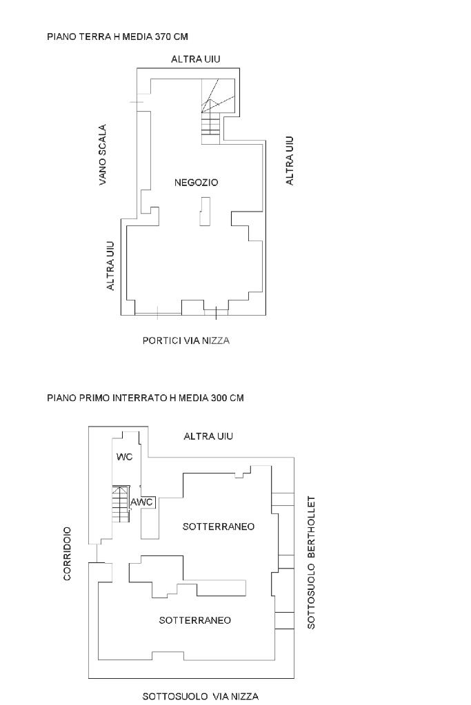
Il negozio, che copre una superficie complessiva di circa 140 mq, è disposto su due livelli collegati internamente da scala.

Caratterizzato da due grandi vetrine, al piano terra, si sviluppa su una superficie di circa 65 mq e si compone da due spaziosi vani su strada e del retro dove è presente una porta d'uscita che consente di accedere all'adiacente androne condominiale. L'altezza degli ambienti è di circa 3.70 mt.

Il piano sottostante, copre una superficie di circa 75 mq. Un corridoio disimpegna due grandi vani e il servizio igienico, dotato di antibagno e di ventilazione forzata. L'altezza interna è di 3 mt.

I soffitti sono a volta e diverse nicchie a muro sapientemente recuperate caratterizzano le pareti.

Completa la proprietà un posto auto di circa 15 mq nel cortile dello stabile.

Data la posizione e le caratteristiche l'immobile si presta sia ad attività commerciali di vendita sia ad uso ufficio o studio professionale.

Per appuntamenti contattare il numero fisso 011655063 o il numero Whatsapp 347 771 13 85.

Mostra tutto

Nelle vicinanze

Trasporto pubblico Trasporto pubblico
Nizza
Nizza
440 m
Dante
Dante
730 m
stazione di Torino Porta Nuova
stazione di Torino Porta Nuova
1,1 Km
stazione di Torino Porta Susa
stazione di Torino Porta Susa
2,6 Km
Giuria
Giuria
10 m
Ricariche auto elettriche Ricariche auto elettriche
Bluetorino Valentino
600 m
evway TO Turati
880 m
evway TO Vittorio Emanuele II
1,5 Km
evway TO Piazza Cln
1,8 Km
NH Collection Torino Piazza Carlina
1,8 Km
Scuole Scuole
Università di Torino - Istituto di Fisiologia
90 m
Università degli Studi di Torino - Dipartimento di Chimica
100 m
Università degli Studi di Torino - Dipartimento di Fisica
180 m
Aule Torino Esposizioni
200 m
Istituto di Istruzione Superiore C.I. Giulio
310 m
Farmacia Farmacia
Borgarelli
210 m
Nizza
450 m
Dante
540 m
Farmacia Portis
590 m
Sacro Cuore SNC
620 m
Ospedali Ospedali
Ospedale San Vito
790 m
Ospedale Evangelico Valdese
800 m
Ospedale Mauriziano
1,2 Km
Ospitale Mauriziano Umberto I di Torino
1,2 Km
Ospedale Molinette
1,4 Km
Supermercati Supermercati
Carrefour Market
160 m
IN's
200 m
Simply Market
300 m
Simpatia CRAI
520 m
Supermercati
600 m
Negozi Negozi
CaschiStockTorino
80 m
Schenone Sport
160 m
El pan d'na volta
170 m
El pan d'na Volta
180 m
Zio pagnotta
290 m
Bar Bar
Cafè Élite
360 m
Art & Coffee
440 m
Vasile Bar
450 m
Italy Inn
460 m
Ennio Bar
560 m
Ristoranti Ristoranti
El Shish Kebab
210 m
Taverna rossa
240 m
Pizzeria Dessi
260 m
Caribbean Bistrot
270 m
Adonis Crêperie
270 m
Mostra tutto

Caratteristiche

Rif.:
61159716
Piano:
Su più livelli di 6
Totale piani:
6
Posti auto:
1
Condizionamento:
Predisposizione impianto
Ascensore:
No
Mostra tutto
Prezzo Prezzo
€ 2.000 / mese
Spese annue Spese annue
€ 1.400

Classe Energetica

G
G
G
G
G
G
G
G
G
EP globale non rinnovabile:
117.03 kW h/m² anno
EP globale rinnovabile:
12.49 kW h/m² anno
EP invernale del fabbricato:
EP estiva del fabbricato:
Anno di costruzione:
1900
Riscaldamento:
Autonomo
Tipo impianto:
Ad aria
Tipo alimentazione:
Altro

Ti interessa visionare l'immobile?

Fissa un appuntamento  Fissa un appuntamento

Richiedi informazioni

Clicca su Leggi per aprire l'informativa
* Questi campi sono obbligatori
Affiliato
Studio Aeronautica Per L'Azienda Sas
Via Madama Cristina, 75/A 10126 Torino (TO)

Il nostro staff


  • Concetta Chierchia
    Affiliata

  • Loredana Tripodi
    Coordinatrice
Via Madama Cristina, 75/A 10126 Torino (TO)
Zona: San Salvario-Precollina-Crocetta-Lingotto-Mirafiori
Mostra su mappa
Orari: dal lunedì al venerdì dalle 09.00 alle 12.30 e dalle 14.30 alle 19.30 - sabato chiusura 12.30
Affiliato
Studio Aeronautica Per L'Azienda Sas
Via Madama Cristina, 75/A 10126 Torino (TO)

2026 Tecnocasa Franchising S.p.A. - P. IVA 08365160152 - Via Monte Bianco 60/A 20089 Rozzano (MI). Ogni agenzia ha un proprio titolare ed è autonoma. Privacy policy | Policy utilizzo | Cookie policy