Negozio in affitto

Torino, Corso dante - Nizza
€ 1.600 / mese
3 locali 3 locali
100 Mq 100 Mq
1 bagno 1 bagno

Negozio in affitto

Torino, Corso dante - Nizza

Descrizione annuncio

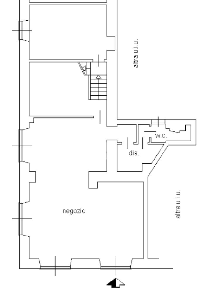
CORSO DANTE: nell'isolato tra Via Giotto e Via Ormea, nelle immediate vicinanze di Via Madama Cristina, in un curato ed elegante contesto degli inizi del Novecento, si dispone di una soluzione commerciale accatastata C/1 in affitto, libero da subito.

Il negozio sito in posizione d'angolo, è caratterizzato da quattro grandi vetrine distribuite sui due lati, dotate di serrande elettriche ed infissi nuovi appena sostituiti.

L'immobile, che copre una superficie di circa 100 mq, si compone di un ampio vano fronte strada e di due retri spaziosi.

L'altezza interna degli ambienti è di 4,80 mt.

Completa la proprietà il servizio igienico interno fornito di lavandino e tazza wc.

Le spese di condominio, da ultimo consuntivo, sono di circa 100,00 euro al mese, salvo conguaglio.

Vi sono due canne fumarie da video ispezionare.

Date le caratteristiche e la posizione prossima a tutti i servizi primari, quali scuole di ogni ordine e grado, ospedali, banche, strutture socio sanitarie, alla presenza di innumerevoli attività commerciali, negozi di vicinato, supermercati, di uffici privati, delle fermate delle linee Gtt 18, 42 e alla vicinanza della stazione metropolitana Dante, che dista pochi minuti a piedi, l'immobile si presta ad essere adibito a molteplici usi sia di vendita al dettaglio, sia ad uso studio professionale.

Per appuntamenti contattare il numero fisso 011655063 o il numero Whatsapp 347 771 13 85.

Mostra tutto

Nelle vicinanze

Trasporto pubblico Trasporto pubblico
Dante
Dante
270 m
Nizza
Nizza
540 m
stazione di Torino Porta Nuova
stazione di Torino Porta Nuova
1,6 Km
stazione di Torino Lingotto
stazione di Torino Lingotto
2,7 Km
Giuria
Giuria
560 m
Ricariche auto elettriche Ricariche auto elettriche
evway TO Turati
890 m
Bluetorino Valentino
1,2 Km
Lingotto - 8 Gallery - Parcheggio E
1,6 Km
BECHARGE BENNET Centro Commerciale Millecity Center
1,9 Km
evway TO Vittorio Emanuele II
1,9 Km
Scuole Scuole
Liceo Classico Vittorio Alfieri
110 m
Istituto Rosmini
380 m
Scuole
470 m
Aule Torino Esposizioni
520 m
Università di Torino - Istituto di Fisiologia
540 m
Farmacia Farmacia
Dante
70 m
Farmacia Torino Esposizioni SNC
260 m
Sacro Cuore SNC
260 m
Gani SNC
510 m
Farmacia
630 m
Ospedali Ospedali
Ospedale Molinette
820 m
Ospedale Mauriziano
1,0 Km
Ospitale Mauriziano Umberto I di Torino
1,0 Km
Ospedale San Vito
1,2 Km
Ospedale Sant'Anna - Emergency
1,2 Km
Supermercati Supermercati
Supermercati
40 m
IN's
380 m
Pam
500 m
Carrefour Market
600 m
Prestofresco
700 m
Negozi Negozi
Negozi
40 m
Il Forno di San Bernardino
290 m
Bottega Russa
350 m
Poggioli
380 m
Baobab
460 m
Bar Bar
Cafè Élite
230 m
Italy Inn
440 m
Pasticceria Beatrice
560 m
Lowen Bar
650 m
Fermata Carducci
720 m
Ristoranti Ristoranti
Osteria 'n Cicinin
100 m
La Stadèra
110 m
Area Nova
120 m
Ristorante Cinese Tientsin
170 m
Pizzeria Cecchi
200 m
Mostra tutto

Caratteristiche

Rif.:
60995789
Piano:
Terra di 9
Totale piani:
9
Condizionamento:
Assente
Ascensore:
No
Riscaldamento:
Autonomo
Mostra tutto
Prezzo Prezzo
€ 1.600 / mese
Spese annue Spese annue
€ 1.200

Classe Energetica

E
E
E
E
E
E
E
E
E
EP globale non rinnovabile:
74.07 kW h/m² anno
EP globale rinnovabile:
0.00 kW h/m² anno
EP invernale del fabbricato:
EP estiva del fabbricato:
Anno di costruzione:
1920
Riscaldamento:
Autonomo
Tipo impianto:
A radiatori
Tipo alimentazione:
Altro

Ti interessa visionare l'immobile?

Fissa un appuntamento  Fissa un appuntamento

Richiedi informazioni

Clicca su Leggi per aprire l'informativa
* Questi campi sono obbligatori
Affiliato
Studio Aeronautica Per L'Azienda Sas
Via Madama Cristina, 75/A 10126 Torino (TO)

Il nostro staff


  • Concetta Chierchia
    Affiliata

  • Loredana Tripodi
    Coordinatrice
Via Madama Cristina, 75/A 10126 Torino (TO)
Zona: San Salvario-Precollina-Crocetta-Lingotto-Mirafiori
Mostra su mappa
Orari: dal lunedì al venerdì dalle 09.00 alle 12.30 e dalle 14.30 alle 19.30 - sabato chiusura 12.30
Affiliato
Studio Aeronautica Per L'Azienda Sas
Via Madama Cristina, 75/A 10126 Torino (TO)

2026 Tecnocasa Franchising S.p.A. - P. IVA 08365160152 - Via Monte Bianco 60/A 20089 Rozzano (MI). Ogni agenzia ha un proprio titolare ed è autonoma. Privacy policy | Policy utilizzo | Cookie policy