Laboratorio in vendita

Torino, Via Albenga - Galimberti
€ 65.000
2 locali 2 locali
90 Mq 90 Mq
1 bagno 1 bagno

Laboratorio in vendita

Torino, Via Albenga - Galimberti

Descrizione annuncio

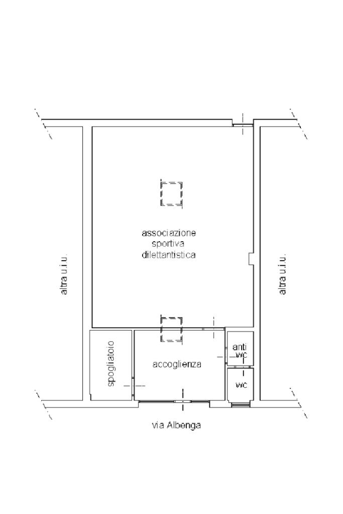
VIA ALBENGA: in pieno quartiere Lingotto, nell'isolato tra Corso Corsica e Piazza Tancredi Galimberti, si dispone di un basso fabbricato in vendita accatastato C/4.

L'immobile, disponibile da Luglio 2026, è posto al piano strada e si sviluppa su una superficie di circa 90 mq.

Internamente la pianta regolare si compone di un ampio vano open space, un altro ambiente più piccolo ed i servizi igienici.

E' presente l'impianto di condizionamento.

Lo stato degli ambienti è buono, il pavimento è in parquet chiaro.

I soffitti, alti 4 mt donano particolare luminosità.

Le spese di condominio, da ultimo rendiconto, sono di circa 460,00 euro all'anno.

Per appuntamenti contattare il numero fisso 011655063 o il numero Whatsapp 347 771 13 85.

Mostra tutto

Nelle vicinanze

Trasporto pubblico Trasporto pubblico
Lingotto
Lingotto
980 m
Italia61
Italia61
1,2 Km
stazione di Torino Lingotto
stazione di Torino Lingotto
670 m
San Marino
San Marino
530 m
Montevideo
Montevideo
570 m
Ricariche auto elettriche Ricariche auto elettriche
Bluetorino Via Giordano Bruno
160 m
BECHARGE BENNET Centro Commerciale Millecity Center
520 m
Lingotto - 8 Gallery - Parcheggio B1
740 m
Lingotto - 8 Gallery - Parcheggio E
870 m
Lidl Torino Traiano
1,3 Km
Scuole Scuole
Convitto per sordomuti
390 m
Scuola Duca degli Abruzzi
460 m
Scuole
470 m
Scuola Media Statale G. Vico
530 m
Liceo scientifico e linguistico Niccolò Copernico
590 m
Farmacia Farmacia
Comunale 28 - Afc
130 m
Madonna delle rose
180 m
Farm
380 m
Monviso
460 m
Parafarmacia
510 m
Ospedali Ospedali
Ospedale Sant'Anna - Emergency
1,5 Km
Ospedale CTO - Emergency
1,5 Km
Ospedale Ginecologico-Ostetrico Sant'Anna
1,6 Km
Ospedale CTO
1,6 Km
Ospedale Infantile Regina Margherita
1,6 Km
Supermercati Supermercati
U2 Via Tunisi
220 m
Bennet
510 m
Conad City
830 m
PAM
940 m
D più
950 m
Negozi Negozi
Tabacc Anco
20 m
Convenience Store
80 m
Butcher & Greengrocer
120 m
Caspita
160 m
Supermarket Mongelli
850 m
Bar Bar
Bar Sport
80 m
Roxy Bar
180 m
Caffè 7 note
520 m
Bar Filadelfia
680 m
da Gigi
910 m
Ristoranti Ristoranti
Cammafà
170 m
Pizzeria Ristorante
200 m
La Cena Coi Fiocchi
810 m
Mei Shi
810 m
Old Wild West 8 Gallery
820 m
Mostra tutto

Caratteristiche

Rif.:
61197976
Piano:
Terra di 1
Totale piani:
1
Condizionamento:
Autonomo
Ascensore:
No
Riscaldamento:
Autonomo
Mostra tutto
Prezzo Prezzo
€ 65.000
Rata mutuo Rata mutuo
€ 308 / mese
Spese annue Spese annue
€ 460
Proponi il tuo prezzoProponi il tuo prezzo

Classe Energetica

E
E
E
E
E
E
E
E
E
EP globale non rinnovabile:
3.51 kW h/m² anno
EP globale rinnovabile:
0.00 kW h/m² anno
EP invernale del fabbricato:
EP estiva del fabbricato:
Anno di costruzione:
1980
Riscaldamento:
Autonomo
Tipo impianto:
Ad aria
Tipo alimentazione:
Altro

Ti interessa visionare l'immobile?

Fissa un appuntamento  Fissa un appuntamento

Richiedi informazioni

Clicca su Leggi per aprire l'informativa
* Questi campi sono obbligatori

Calcola il tuo mutuo

Semplice e senza impegno
Anticipo

( % )
Mutuo

( % )

pochi semplici passi

inserisci i tuoi dati
Questionario completato
Grazie per aver richiesto un appuntamento senza impegno con un nostro Consulente del Credito e Assicurativo.

Hai inserito correttamente tutti i dati necessari e a breve riceverai una e-mail con un link da convalidare per inviare i tuoi dati.
Affiliato
Studio Aeronautica Per L'Azienda Sas
Via Madama Cristina, 75/A 10126 Torino (TO)

Il nostro staff


  • Concetta Chierchia
    Affiliata

  • Loredana Tripodi
    Coordinatrice
Via Madama Cristina, 75/A 10126 Torino (TO)
Zona: San Salvario-Precollina-Crocetta-Lingotto-Mirafiori
Mostra su mappa
Orari: dal lunedì al venerdì dalle 09.00 alle 12.30 e dalle 14.30 alle 19.30 - sabato chiusura 12.30
Affiliato
Studio Aeronautica Per L'Azienda Sas
Via Madama Cristina, 75/A 10126 Torino (TO)

2026 Tecnocasa Franchising S.p.A. - P. IVA 08365160152 - Via Monte Bianco 60/A 20089 Rozzano (MI). Ogni agenzia ha un proprio titolare ed è autonoma. Privacy policy | Policy utilizzo | Cookie policy